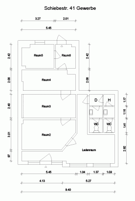
30. Oktober 2018 | Silke Frötschner Gewerberaum in Eutritzsch Ehemalige Tierarztpraxis Fläche 90 m² - KM 360 € Sie haben Ihre Geschäftsidee wir den passenden Raum. Kontakt: vertrieb@bgl.de oder 0341 90 99 400. Neuigkeiten Übersichtnächste Neuigkeit vorherige Zurück zur letzten Ansicht