Eingabehilfen

Schöne 3-Zimmer Wohnung mit Balkon

Friedrich-Dittes-Straße 21, 04318 Leipzig

3 Zimmer
83 m2
639 € Kaltmiete
aussenansicht-2 BGL – Schöne 3-Zimmer Wohnung mit Balkon
Außenansicht 3.jpg
Außenansicht 1.jpg
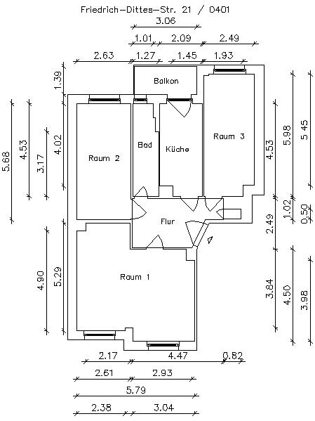
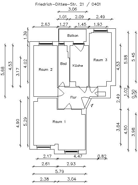
Grundriss 3. OG links.jpg

Objektbeschreibung

Objektreferenz: 1/1801/5/47 Die Wohnanlagen G.-Fuchs-Str., Neumann-Str., Stünzer Str. und Fr.-Dittes-Str. bieten 1-5 Zimmerwohnungen im sanierten Altbau. Große, begrünte Innenhöfe mit Spielgerät und Sitzmöglichkeiten stehen zur Entspannung bereit. Die Wohnungen verfügen über vielfältige Grundrissvarianten und sind überwiegend mit Loggia oder Balkon ausgestattet.

Lagebeschreibung

Anger-Crottendorf am nordöstlichen Stadtrand, gilt als lebendiger Stadtteil. Altbausubstanz, Eigenheime, Kleingewerbe, Kleingarten- und Parkanlagen, wie der Stünzer Park, prägen das Erscheinungsbild. Die Region ist von der Rietzschkeaue durchzogen und grenzt an ein Landschaftsschutzgebiet.

Energieausweis

  • Typ Verbrauchsausweis
  • Etage 3. OG
  • Baujahr 1931
  • Heizung Zentralheizung
  • Befeuerung Gas
  • inkl. Warmwasser Ja

Energiekennwert: 86,80 kWh/(m²*a)

C

Steckbrief

  • Zimmer 3
  • Wohnfläche 83 m2
  • Etage 3. OG
  • verfügbar ab sofort
  • Objektnummer 1/1801/5/47

Kosten

  • Kaltmiete 639 €
  • Betriebkosten 125 €
  • Heizkosten 116 €
  • Gesamtmiete
    zzgl. Genossenschaftsanteile
    880 €

Ausstattung

Fußboden: Laminat

Balkon

Sie sind interessiert?

Online bewerben

Nicht das Richtige?

Wohnungsgesuch aufgeben

Bei Fragen oder Problemen mit dem Vermietungsprozess nutzen Sie bitte unseren
Mietinteressenten-Leitfaden